Très beau 4.5 pièces contemporain idéalement situé dans le Lavaux

Suisse, Jongny | Jongny
Description
Référence:
NC1
Pièces:
4.5
Nb de chambres:
3
Surface utile:
140 m2
Vue:
Lac
État:
Bon
Charges mensuelles:
CHF 275.-
Disponibilité:
01.04.2026
Description
Baigné de lumière et niché dans un environnement d’une quiétude absolue, cet appartement d’exception jouit d’une situation privilégiée, sans aucune nuisance, offrant un dégagement sur le lac et les Alpes.

Son architecture contemporaine, sublimée par de larges baies vitrées, efface les frontières entre intérieur et extérieur et invite le paysage à devenir un véritable tableau vivant. Chaque pièce, orientée plein sud, s’ouvre sur une belle terrasse et profite d’une vue imprenable sur le lac, offrant un spectacle renouvelé au fil des heures et des saisons.
Les locaux jouissent également d'un magnifique jardin. 

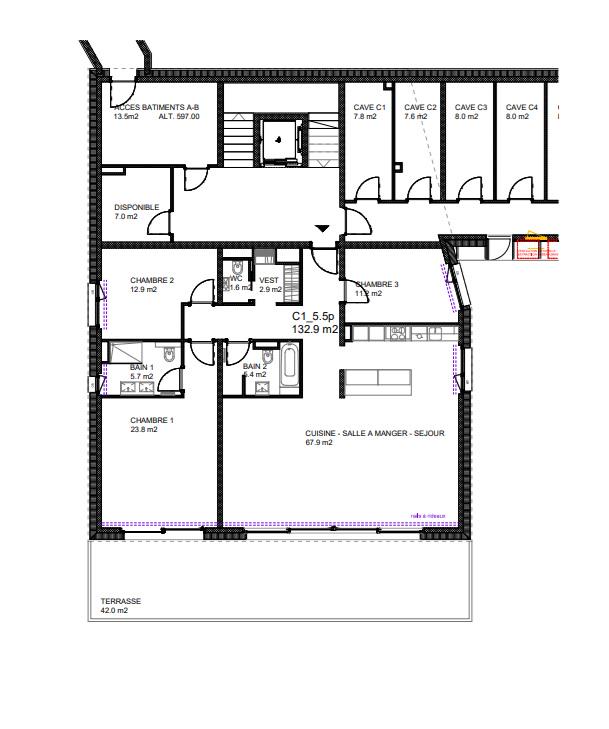
Déployé sur environ 122 m², complétés par une généreuse terrasse de 40 m², cet appartement conjugue volumes harmonieux et élégance intemporelle. Une buanderie privative intégrée vient parfaire le confort du quotidien.

L’agencement intérieur a été pensé avec soin :

Un hall d’entrée accueillant avec vestiaire intégré

Une superbe cuisine contemporaine ouverte sur le séjour, agrémentée d’un ilôt-bar convivial

Un vaste séjour baigné de lumière, avec accès direct à la terrasse

Trois chambres aux proportions généreuses

Trois WC, dont un pour les visiteurs

Deux salles d’eau, dont une avec baignoire

Une grande terrasse idéale pour admirer les couchers de soleil

Une cave

Le choix raffiné des matériaux et la qualité irréprochable des finitions, tant intérieures qu’extérieures, confèrent à ce bien un caractère exclusif et recherché. À seulement dix minutes du centre de Vevey, il offre un équilibre parfait entre sérénité et accessibilité.

Les transports publics desservent aisément cette adresse, Vevey est accessible également par funiculaire, et l’autoroute se rejoint rapidement, sans aucune nuisance sonore.

Charges mensuelles : CHF 275.– (non comprises)
Deux places de parc intérieures disponibles : CHF 175.–/place/mois

Un lieu rare, où confort contemporain et beauté naturelle s’unissent pour offrir un art de vivre incomparable.
Adresse
1805 Jongny
Sur la carte
CHF 3'180.-
Agent immobilier
Pierre Homonnay
Contactez le courtier
Aller en haut